Changes in store for high-profile West Paces Ferry Road cornerJosh GreenFri, 03/27/2026 - 15:11Big plans are cooking for a little century-old building with a storied restaurant past in the heart of one of Atlanta’s most upscale districts. Buckhead’s SPI-9 Development Review Committee is scheduled to review a new restaurant concept and building expansion at 111 W. Paces Ferry Road during its Wednesday meeting, according to an agenda. Situated at the northeast corner of West Paces Ferry Road and East Andrews Drive, the property is across the street from the Atlanta History Center complex, about two blocks from Buckhead Village. Site plans filed by Buckhead Life Restaurant Group refer to the concept as “Panos’ Restaurant.” The Johnson Studio at Cooper Carry, an Atlanta-based firm specializing in restaurant design, is working on the project.
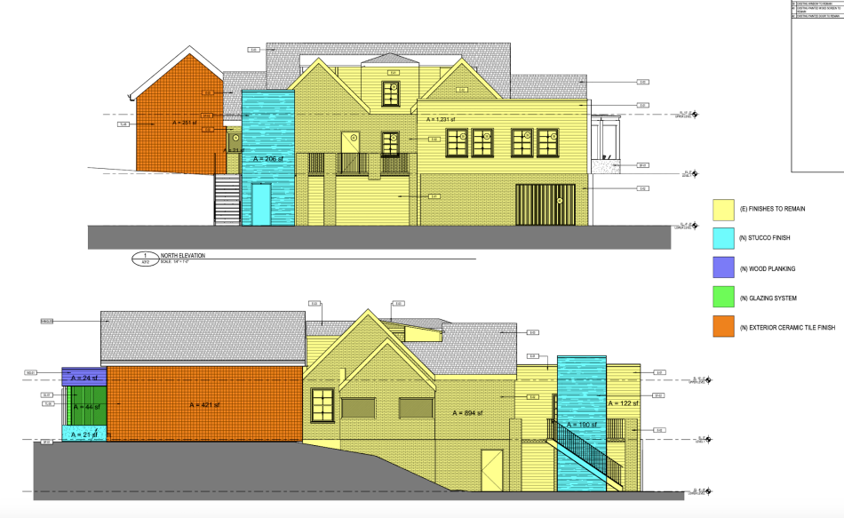
Plans for the expanded West Paces Ferry Road restaurant facade. The Johnson Studio at Cooper Carry
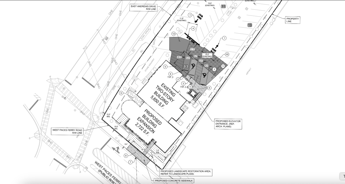
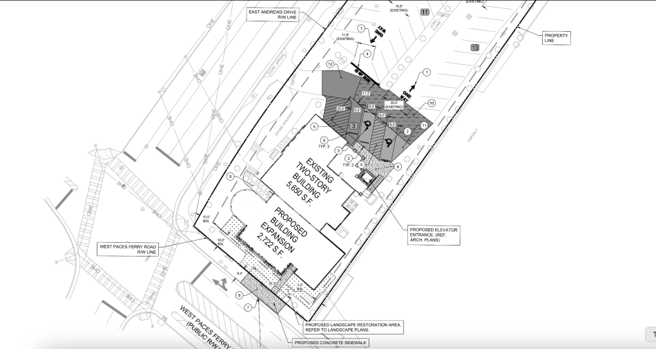
The 111 W. Paces Ferry Road site in relation to Atlanta History Center and other landmarks. Google MapsSite plans call for adding a 2,722-square-foot expansion to the existing two-story structure, which totals 5,650 square feet today, along West Paces Ferry Road. A total of 40 parking spaces, including three ADA spaces, are shown in current designs. According to LoopNet, the current building dates to 1921 and was transformed by The Johnson Studio into legendary Seeger’s restaurant in the 1990s. That fine-dining establishment helped put Atlanta on the gourmet radar globally during its decade-long run.
The Johnson Studio at Cooper Carry
The vacant corner building in question, at left, in March 2025. Google MapsMore recently, the building has been home to Coast Seafood and Raw Bar, Yebo Beach Haus, and European restaurant concept Dorian Gray, which shuttered two years ago. It’s also served as a seasonal spot for Christmas tree sales in recent years. No timeline for the most recent planned conversion is specified in filings. Find more context and images in the gallery above. **…**Follow us on social media:Twitter / Facebook/and now: Instagram • Buckhead news, discussion (Urbanize Atlanta)Tags111 W Paces Ferry RoadJohnson StudioGunter SeegerPanos Restaurant GroupC2ExpiditingCaren Ann NunnallyBowmanBuckhead Life Restaurant GroupBowman ConsultingAtlanta RestaurantsBuckhead NewsBuckhead RestaurantsBuckhead DevelopmentWest Paces Ferry RoadEast Andrews DriveThe Johnson StudioCooper CarryCooper Carry(16664)Atlanta HistoryAtlanta History CenterBuckhead DRCSeeger’sImages
The 111 W. Paces Ferry Road site in relation to Atlanta History Center and other landmarks. Google Maps
Existing building and expansion plans at the West Paces Ferry Road corner. Bowman Consulting; via SPI-9 Development Review Committee
Overview of the corner site where West Paces Ferry Road meets East Andrews Drive. Google Maps
The Johnson Studio at Cooper Carry
Plans for the expanded West Paces Ferry Road restaurant facade. The Johnson Studio at Cooper Carry
The vacant corner building in question, at left, in March 2025. Google Maps
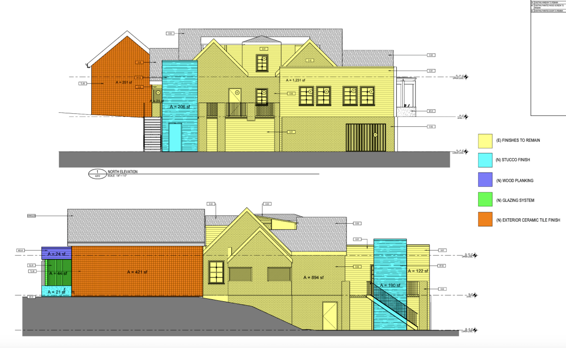
Plans for the north (top) and east elevations. The Johnson Studio at Cooper CarrySubtitleExpansion planned for Buckhead Life Restaurant Group concept near Atlanta History Center, per filingsNeighborhoodBuckheadBackground ImageImage
Before/After ImagesSponsored PostOff
#Atlanta #UrbanizeAtlanta #theATLBot

